戶 型 | 160㎡
項目空間分析
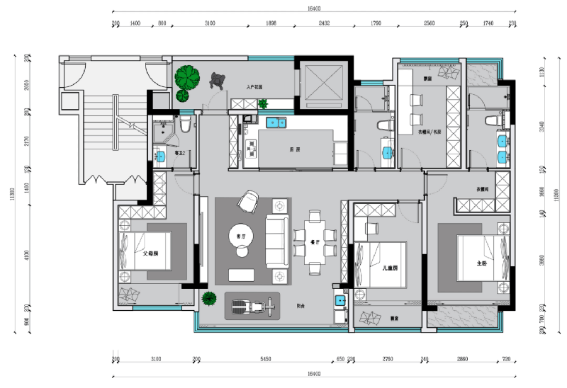
原平面分析
E1
E2
戶型:四室兩廳三衛
優點:
1、主要采光向為正南向,保證室內日間明媚有光照,且不會受到陽光直曬。
2、主臥套房,保證業主隱私,增加居住便利性。
3、有晾曬衣物的陽臺。
4、有了入戶花園,打開入戶門后,不用擔心室內被一覽無余,房屋的私密性大大提高。
5、每個房間都帶有飄窗,整個房型尺度感很大。
缺點:
1、衛生間居中,位置不合理。
2、朝北臥室空間緊湊,需要根據實際需求重新規劃。
3、儲物空間需要優化。
平面方案
E1
入戶是一個闊綽的花園,愛好種花養草,親近自然的人,可以將這里打造成一個小花園,入戶花園也打造了收納柜,用來收納一個種植花花草草的工具,以及日常出門的鞋子,實用性更強,穿過入戶花園,推開門就是走廊和客餐廳一體化,陽臺和客廳打通,采光更為充足,空間更為寬敞,陽臺做洗衣臺面設計,也可以在陽臺擺放健身器材,用于強身健體,客廳中以沙發作為隔斷,分隔休閑區和就餐區,兩者既保持一定的聯系,又能相互獨立,廚房中做U型臺面設計,空間寬敞,動線流暢,格局合理,人性化設計,更省時省力。
四間臥室,三間朝南,采光充足,父母房中帶有獨立衛浴,方便老人起夜,衛生間更是要做適老化設計,方便老人居住和使用,沿墻面定制的L型收納柜,***利用拐角空間,收納功能強大。兒童房帶有飄窗,視覺效果寬敞,改良采光,讓房間更加明亮,稍微裝飾下,鋪幾個蒲團,坐在午后的陽光里,看書喝茶擼貓。主臥中L型衣柜設計,形成獨立的小型衣帽間,浴室中兩個盥洗盆設計,方便男女主人早上上班時,不會出現匆忙爭搶的現象。朝北臥室設計成衣帽間和書房,解決家中收納問題,同時也提供了獨立安靜的學習工作空間。
E2一
兩個戶型***大的區別就是陽臺,E1戶型中的次臥有飄窗,E2戶型中的次臥是連接客廳空間的超長陽臺,集洗衣晾曬休閑功能于一體,客廳中使用L型沙發,家居設計更為時尚,也能讓客廳空間得到更加充分地利用,可跟據需要進行變動,讓客廳空間更具有新鮮感,北次臥設計成獨立的書房,做整墻的收納柜體,用于收納書籍文件。
E2二
和E2戶型中的***稿設計方案相比,第二稿設計方案中,打通了客廳陽臺空間,使得整個客餐廳空間更加寬敞明亮,客餐廳空間更加相容,餐桌延長臺面裝有水池,方便用餐時洗手洗水果等,沙發椅等不規則的設計,使得整個客餐廳空間更具有設計感、時尚感。
軟裝設計意向分析
玄關
入戶玄關讓人眼前一亮,鞋柜底部留空,放鞋方便又美觀,鞋柜底部可以安裝聲控燈帶,拿取鞋子會更加方便,同時,聲控燈帶也能給生活增加更多的趣味性,把換鞋凳組合到鞋柜里,做成一體的設計既能保持空間的美觀簡潔,又能方便換鞋,也是一種比較流行的設計,鞋柜中間留空,隨手置物很方便,也能讓玄關顯得沒有那么擁擠。
客廳
深色木材和灰色系搭配,氛圍沉穩的同時也不乏溫暖感,嵌入式的電視機設計,將電視機嵌入到電視背景墻內,電視背景墻做收納柜,線路可以隱藏在電視后面,大氣又整潔,很多家中的雜物都可以放在儲藏柜里,儲物功能直接翻倍,客廳整體的裝修風格,給人很溫馨、很舒適,有種高雅大氣的時尚感,色調柔和低調有內涵,在家具與色彩搭配上盡顯簡約大方,浪漫優雅,有韻味。
餐廳
餐廳要以簡潔為主,無需過多的裝飾,簡單的燈具就是***好的裝飾品,餐邊柜的用處除了儲物功能與裝飾功能之外,還具備展示物品的作用,業主可以把收藏的酒、餐盤杯子或工藝作品放在餐邊柜的櫥窗中展示出來,烘托餐廳的氛圍,既實用有充滿了格調。
主臥
在房頂凹槽處做燈帶設計代替原有的主燈,實現極簡大方的燈具設計,讓整個房間簡潔明亮,視覺上房間更加寬敞,L型透明衣柜,在臥室中形成了小型衣帽間,同時能作為隔斷,分隔洗浴區和睡眠區,茶色的透明玻璃柜門提升空間的通透感,實用又高級,拿取衣服更加方便,更有一種精致的高級感,讓衣柜中的衣服成為一種展示品,美觀與實用兼具。
兒童房
兒童房的裝修要童趣而不幼稚,伴隨著孩子的成長,依舊能對房間的裝飾擁有新鮮感,男生房的設計,更加偏素雅簡單,女生的房間,粉色和原木色的結合,夢幻而不顯幼稚,再輔以白色打底,整個空間精致又浪漫。
老人房
對于老人來說***重要的就是睡眠,因此,老人房中的隔音一定要做好,這樣老人才可以睡好,其次,便是雙層窗簾的安裝,一層用于白天遮光,避免陽光過于強烈,一層是晚上的隔光窗簾,保證室內的睡眠環境,床頭柜***好做圓弧設計,沒有菱角磕碰,床頭背景墻的線條燈,采用暖色燈帶,方便老人晚上起夜上廁所。
北次臥
鑒于北次臥空間有限,將北次臥做書房+衣帽間二合一的設計,一側做靠墻書桌,另一側做到頂衣柜設計,學習儲物兩不誤,家中儲物空間充足時,可以將衣柜改造成整墻的書籍收納,將整個空間變成書房,空間獨立不受打擾。
陽臺
將洗衣間放在陽臺上,緩解衛生間的空間,也更加方便衣服的晾曬,在陽臺上定制一組柜子,把雜物都放在里面,陽臺采光充足,可以在陽臺上打造一組休閑桌椅,喝喝茶,聊聊天,欣賞窗外的風景,陽臺的陽光也是培養花草的培育室,可以種些花花草草,改善一下陽臺環境和空氣。
整體預算估算